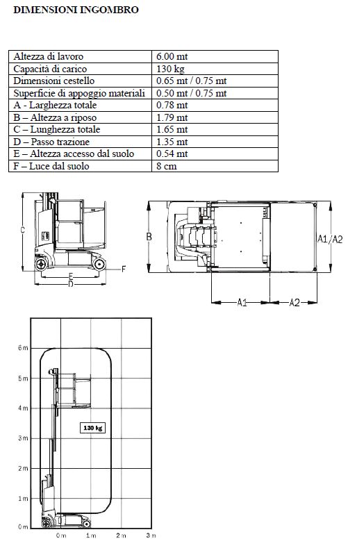
Piattaforma aerea JLG Toucan Duo anno 2011, portata 130 kg
Altezza uomo 4000 mm, altezza lavoro 6000 mm, dimensioni cestello 0.65 mt / 0.75 mt, superficie di appoggio materiali 0.50 mt / 0.75 mt, larghezza totale 0.78 mt, altezza a riposo 1.79 mt, lunghezza totale 1.65 mt, passo trazione 1.35 mt, altezza accesso dal suolo 0.54 mt – Luce dal suolo 8 cm