Logo Logo
 
0

Carrello

Il tuo carrello è vuoto
  • Home
  • Parco Veicoli
  • Clima
  • Logistica
  • Chi siamo
  • Contatti

Copia il link ed incollalo sui social network per condividere la pagina
Copia link

JLG TUOCAN DUO - c. 546

JLG
JLG TUOCAN DUO - c. 546
JLG TUOCAN DUO - c. 546 - photo 1
  • 546
  • Anno: 2011
  • PORTATA:: 130 KG
  • ALTEZZA UOMO: 4.000 mm
  • ALTEZZA LAVORO: 6.000 mm
  • GOMMATURA:: ANTITRACCIA
  • Gallery
  • Descrizione
  • Video
  • Contatti
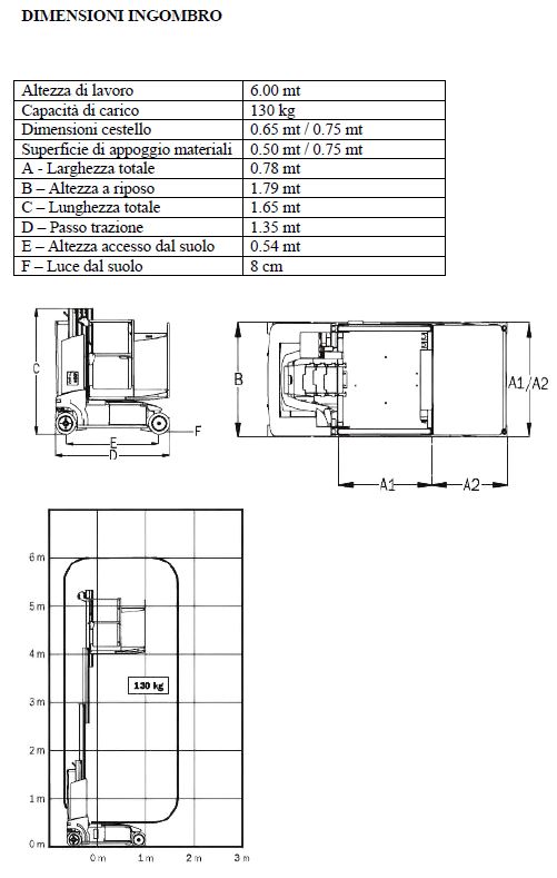
Piattaforma aerea JLG Toucan Duo portata 130 kg anno 2011
Piattaforma aerea JLG Toucan Duo portata 130 kg anno 2011 Altezza uomo 4000 mm. altezza di lavoro 6.000 mm, dimensioni cestello 0.65 mt / 0.75 mt, superficie di appoggio materiali 0.50 mt / 0.75 mt, larghezza totale 0.78 mt, altezza a riposo 1.79 mt, lunghezza totale 1.65 mt, passo trazione 1.35 mt, altezza accesso dal suolo 0.54 mt, luce dal suolo 8 cm
Ho letto ed accettato la privacy
 
  • Menù
  • Carrelli elevatori
      Carrelli elevatori
    • Elettrico
    • Diesel
  • Piattaforme Aeree
      Piattaforme Aeree
    • Nuovo
    • Usato
  • Macchine da magazzino
      Macchine da magazzino
    • Transpallet elettrico a colonna
    • Transpallet elettrico
  • Veicoli elettrici
      Veicoli elettrici
    • Nuovo
    • Usato
SPAZZATRICE UOMO A BORDO EUREKA TIGRA

SPAZZATRICE UOMO A BORDO EUREKA TIGRA

ELETTRICA
629
Usato
No
Km: 0
Kw: 0
Cambio: Automatico
Carburante: Elettrica
TRANSPALLET ELETTRICO HANGCHA CBD18-JH - vers. ortofrutta Macchine da magazzino

TRANSPALLET ELETTRICO HANGCHA CBD18-JH - vers. ortofrutta

ELETTRICA
824N
Hangcha
Macchine da magazzino
Transpallet elettrico
Km: 0
Kw: 0
ITALCAR Veicoli elettrici

ITALCAR

ELETTRICA
GST1
Italcar
Veicoli elettrici
Usato
No
Km: 0
Anno: 2002
Kw: 0
Cambio: Automatico
Carburante: Elettrica
GOLF CAR ITAL CAR NEV L4C.4 - SERG1 Veicoli elettrici

GOLF CAR ITAL CAR NEV L4C.4 - SERG1

ELETTRICA
SERG1
Italcar
Veicoli elettrici
Usato
No
Km: 0
Anno: 2008
Kw: 0
STOCCATORE CDD15-WS - c. 853N Macchine da magazzino

STOCCATORE CDD15-WS - c. 853N

ELETTRICO
853N
Hangcha
Macchine da magazzino
Transpallet elettrico a colonna
Duplex
Km: 0
Anno: 2025
Kw: 0
GOLF CAR ITALCAR ATTIVA 6L.6 Veicoli elettrici
Station wagon

GOLF CAR ITALCAR ATTIVA 6L.6

ELETTRICA
KBB
Italcar
Veicoli elettrici
Usato
No
Km: 0
Kw: 0
Cambio: Automatico
Carburante: Elettrica
6 posti, avvisatore acustico di retromarcia, display, luci anteriori e posteriori a LED, clacson, indicatori di direzione, specchietti retrovisori laterali, parabrezza in plexiglass
ALBA GOLF CAR - c. SLCV9 Veicoli elettrici

ALBA GOLF CAR - c. SLCV9

ELETTRICA
SLCV9
ALBA
Veicoli elettrici
Usato
Km: 0
Anno: 2021
Kw: 0
YAMAHA DR2E30 - c. 844 Veicoli elettrici

YAMAHA DR2E30 - c. 844

ELETTRICA
844
YAMAHA
Veicoli elettrici
Usato
Km: 0
Anno: 2019
Kw: 0
EZ-GO SHUTTLE 2 POSTI + CASSONE - c. VAC Veicoli elettrici

EZ-GO SHUTTLE 2 POSTI + CASSONE - c. VAC

ELETTRICA
VAC
Ez-go
Veicoli elettrici
Usato
Km: 0
Kw: 0
EP ELEVATORI PUMA SRL 
Contrada Ventrischi 627 -
Marsala TP

0923 969059 - 338 8407283
info@pumagroup.it
  • Menù
  • Carrelli elevatori
      Carrelli elevatori
    • Elettrico
    • Diesel
  • Piattaforme Aeree
      Piattaforme Aeree
    • Nuovo
    • Usato
  • Macchine da magazzino
      Macchine da magazzino
    • Transpallet elettrico a colonna
    • Transpallet elettrico
  • Veicoli elettrici
      Veicoli elettrici
    • Nuovo
    • Usato
  • Visualizza tutto
© EP ELEVATORI PUMA SRL - All Right Reserved. Designed By Puma Group
Come contattarci
Invia una email
Ti chiamiamo noi
Chatta con noi
WhatsApp
Come contattarci